Ferienhaus Topas 30/40
Bilder durch anklicken vergrößern
Ferienhaus Topas ist mit seiner durchdachten Raumaufteilung und seiner voll isolierten Bauweise ein besonders preiswertes Ferienhaus. Selbstverständlich kann auch bei Topas der Grundriss individuell nach Ihren Wünschen geändert werden.
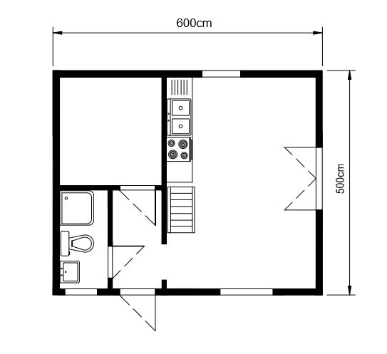
Haustyp Topas ist ab 30 Quadratmeter Grundfläche lieferbar. Der Grundriss zeigt die Variante mit 40 Quadratmetern Grundfläche.
Wände
150mm starke Außenwände (auch in 170, 190 oder 210 mm lieferbar) in hochwirksamer, wärmegedämmter, doppelwandiger Bauweise. Die elektrischen Leitungen können unsichtbar in den Wänden verlegt werden. Die Innenwände werden auf Wunsch mit Profilholz oder Rigipsplatten verkleidet. Die Außenfassade ist entweder mit einer schönen Holzverkleidung oder in einer verputzten Ausführung lieferbar.
Dachgeschoss/Empore
Der Fußboden besteht aus Verlegeplatten und ist über dem Wohnraum offen. Die Decken werden mit einer Profilholzverkleidung versehen. Der Zugang erfolgt über eine stabile Anlegeleiter. Auf Wunsch kann die Zwischendecke auch durchgezogen geliefert werden.
Fenster
Hochwertige Dreh-/Kippfenster mit einer 24mm starken Isolierverglasung und Regenschutzschiene. Fensterläden sind serienmäßig.
Türen
Massive Rahmenholztüren. Außentürsicherung durch Sicherheitsschloss mit Mehrfachverriegelung.
Fußboden
Wärmegedämmter Fußboden aus 22mm starken wasserfest verleimten Verlegeplatten. Auf Wunsch ist ein Holzfußboden lieferbar.
Montage
Komplett im Preis enthalten; Ausbaustufen sind wählbar.
Dach
Bereits in der Grundversion wird das Dach wärmegedämmt und mit einer Dacheindeckung aus langlebigen Betondachsteinen versehen. Diverse Farben stehen zur Auswahl. Regenrinnen und Fallrohre bestehen aus Kunststoff.
Wände 150mm stark, doppelwandig, isoliert
Fußboden und Dach wärmegedämmt
Fenster mit Isolierverglasung
Fensterläden serienmäßig
Betondachsteineindeckung, wärmegedämmt
Schlafboden mit Geländer gesichert
Durchgezogene Zwischendecke optional
Außentür mit Sicherheitsschloss
Komplettmontage oder Ausbaustufen
Bauweise: Holzständer
Isolierung: voll isoliert
Firsthöhe: 4,0 m
Grundfläche: ab 30 qm
Abmessung: s. Grundriss
Raumaufteilung: variabel
